Property Details
Updated two-bedroom terrace on a quiet street nestled in the heart of Darlinghurst, within walking distance to Oxford Street and the CBD. Live in one of Sydney's most youthful and vibrant suburbs offering a quality inner-city living experience. This terrace cottage is both charming and modern.
Property features:
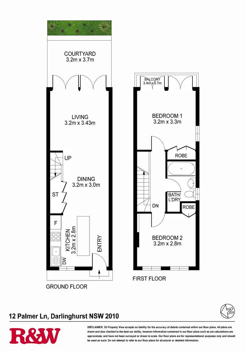
-Open plan living and dining leading onto a private courtyard
-Underfloor heating in kitchen, dining and living area
-Open plan kitchen with Smeg appliances and dishwasher
-Sundrenched master bedroom with built-in wardrobes, air conditioning, ceiling fan and balcony.
-Second bedroom with built-in robes, air conditioning and ceiling fan
-Fully tiled bathroom with bath/shower and new vanity
-Internal laundry.
-Skylights, floorboards, tiled flooring and timber shutters throughout
-Parking permits are available









